проект A3 FASTDOM 1-15
30 м2
Общая площадь:
1
Этажей:
100 мм
Утеплитель:
2.3 м
Высота потолков:
Фальцевое покрытие, Grandline, Планкен
Материал каркаса:
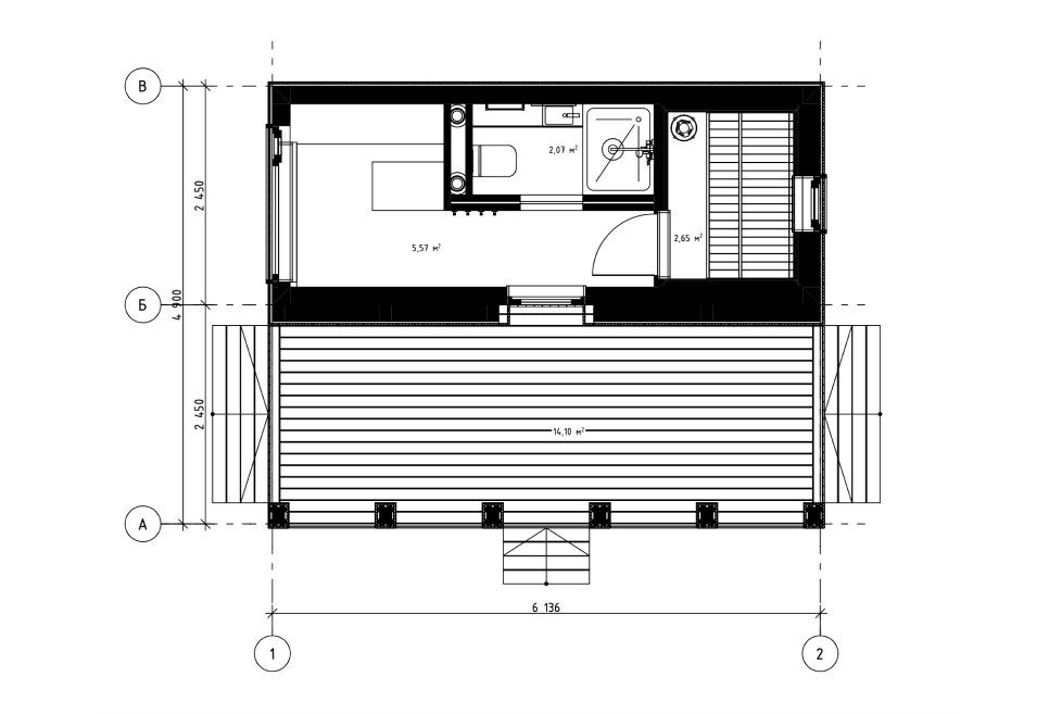
4.9 х 6.1 метров
Габариты дома:
1 932 000
В ипотеку от 15 000 ₽/мес
Планировка A3 FASTDOM 1-15
Отделка пола – кварцвинил
Парная с отделкой и печью
Кровля – профлист
Отделка стен и потолка – березовый шпон
Баня, площадью 30 м2 с террасой – это готовая сборная конструкция общей длинной 4,19 м, шириной 6,136 м. Проектный тип фундамента под баню – свайно-винтовой.