проект A3 FASTDOM 15
15 м2
Общая площадь:
1
Этажей:
100 мм
Утеплитель:
2.3 м
Высота потолков:
Фальцевое покрытие, Grandline, Планкен
Материал каркаса:
6.1 х 2.45 метров
Габариты дома:
1 393 000
В ипотеку от 11 000 ₽/мес
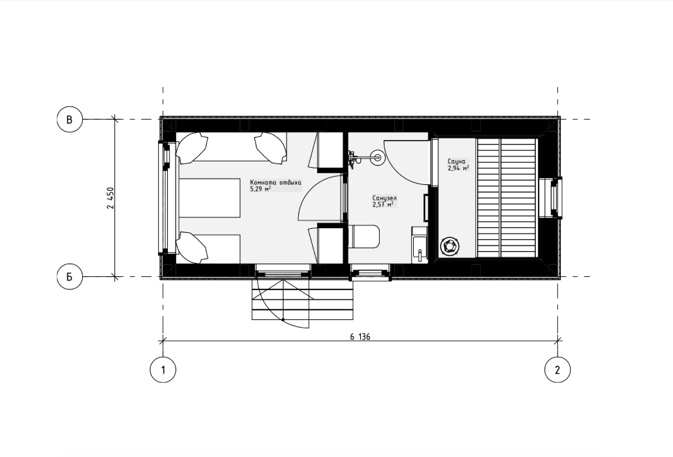
Планировка A3 FASTDOM 15
Отделка пола – кварцвинил
Парная с отделкой и печью
Кровля – профлист
Отделка стен и потолка – березовый шпон
Баня, площадью 15 м2 с террасой – это готовая сборная конструкция общей длинной 6,13 м, шириной 2,45 м. Проектный тип фундамента под баню – свайно-винтовой.