модульный дом поварово 50
50,4 м2
Общая площадь:
40 м2
Жилая площадь:
1
Этажей:
150-200 мм
2
Утеплитель:
Комнат:
от 3.5 до 4.4 метров
Высота потолков:
Фальцевое покрытие, Grandline, Планкен
Материал каркаса:
12 х 5,66 метров
Габариты дома:
2 493 247
В ипотеку от 16 500 ₽/мес
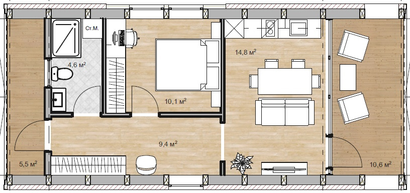
Планировка поварово 50
9,4 м2
Прихожая:
4,6 м2
С/У с окном:
14,8 м2
Кухня-гостинная:
16,1 м2
10,1 м2
2 террасы:
Спальня:
Модульный дом, площадью 50,4 м2 — это готовая сборная конструкция общей длинной 12 м, шириной 5,66 м и высотой в коньке 4,6 м.
комплектация поварово 50
Хотите провести выходные вдали от городской суеты и насладиться тишиной и комфортом? Тогда этот дом для вас! Площадь 50 кв.м. позволяет с комфортом разместить всех членов семьи или друзей, а современный стиль барнхауса подчеркнет вашу индивидуальность.

В доме есть все необходимое для комфортного проживания: кухня-гостиная с панорамными окнами, санузел с душевой кабиной, прихожая с гардеробной зоной и уютная спальня. Преимущества этого дома: 1. Стильный и современный дизайн в стиле барнхаус. 2. Просторная кухня-гостиная для семейных ужинов и веселых вечеринок. 3. Уютная спальня с гардеробной для комфортного отдыха после насыщенного дня. 4. Санузел с душевой кабиной и стиральной машиной для удобства гостей. 5. Прихожая с гардеробной зоной для хранения одежды и обуви.

Этот дом станет идеальным местом для отдыха в выходные дни или для временного проживания. Он прекрасно подходит для тех, кто ценит комфорт и уют, но не готов жертвовать своей свободой и мобильностью.
рассчитать стоимость дома