Дома
Бани
Ипотека
О нас
Контакты
+7 (499) 647 81 54
Каталог проектов модульных домов
»
Поварово 50
50,4 м
2
Общая площадь:
Жилая площадь:
40 м
2
1 этаж
Этажность:
2 комнаты
Комнаты:
150-200 мм
Утеплитель:
от 3.5 до 4.4 метров
Высота потолков:
Фальцевое покрытие, Grandline, Планкен
Материал каркаса:
12х5,66 метров
Габариты дома:
₽
4 480 000
В ипотеку от
16 500 ₽/мес
вопрос в Whats App
Получить смету
Поварово 50
Модульный дом
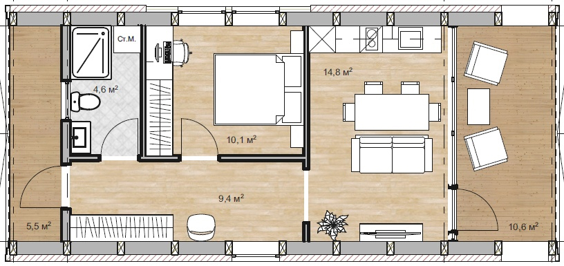
Планировка
Поварово 50
Модульный дом, площадью 50,4 м2 – это готовая сборная конструкция общей длинной 12 м, шириной 5,66 м и высотой в коньке 4,6 м.
9,4 м
2
Прихожая:
4,6 м
2
С/У с окном:
14,8 м
2
Кухня-гостинная:
16,1 м
2
10,1 м2
2 террасы:
Спальня:
Скачать планировку
Получить смету
Вышлем смету (список, что входит в стоимость) дома на указанный телефон
Я согласен на обработку данных
Получить смету дома
Скачать планировку
Вышлем планировку, презентацию и смету дома на указанный телефон
Я согласен на обработку данных
Скачать