модульный дом юрлово 33
32,6 м2
Общая площадь:
27,5 м2
Жилая площадь:
1
Этажей:
150-200 мм
2
Утеплитель:
Комнат:
от 3.5 до 4.4 метров
Высота потолков:
Фальц, Композитный материал, Планкен
Материал каркаса:
9,6 х 5,1 метров
Габариты дома:
2 002 224
В ипотеку от 13 000 ₽/мес
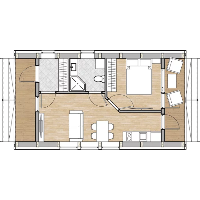
Планировка Юрлово 33
3,2 м2
Прихожая:
3,9 м2
С/У с окном:
16,4 м2
Кухня-гостинная:
5,5 м2
9,1 м2
2 террасы:
Спальня с панорамным окном:
Модульный дом, площадью 32,6 м2 — это готовая сборная конструкция общей длинной 9,6 м, шириной 5,1 м и высотой в коньке 4,44 м.
Отличный вариант для круглогодичного проживания семьи.
комплектация юрлово 33
Проект Юрлово — это идеальный выбор для тех, кто ищет уютное и комфортное жилье в стиле Барнхаус. Этот проект представляет собой дом площадью 32 квадратных метров, который сочетает в себе все необходимые элементы для загородного отдыха.

Дом имеет просторную кухню-гостиную, которая позволит вам проводить время с друзьями и семьей в уютной атмосфере. В доме также есть санузел и прихожая, что делает его очень удобным для жизни. Но самое главное — это стиль Барнхаус, который создает атмосферу уюта и комфорта.

Дом выполнен в светлых тонах, что делает его еще более привлекательным и уютным. Кроме того, дом очень энергоэффективный, что позволяет экономить на коммунальных платежах. Если вы ищете идеальное жилье для загородного отдыха, то проект Юрлово — идеальный выбор. Он сочетает в себе все необходимое для комфортного проживания и отдыха.
рассчитать стоимость дома